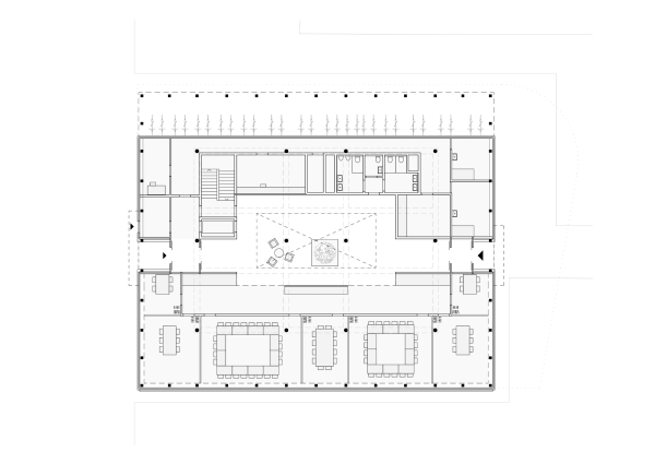
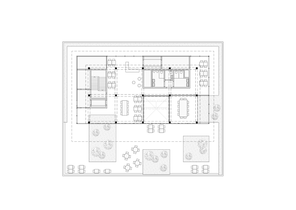
074
Ersatzneubau Altes Laborgebäude, Steinhausen, 2025 — 2030
→ IN PROJEKTIERUNG : Multifunktionales Bürogebäude
Offener Projektwettbewerb, 1. RANG / Folgeauftrag
KOLLEKTIV JUMA mit studio w, Gersbach Landschaftsarchitektur, Arcanus Baumanagement, Gruner Bauingenieure, Olos HLKS-Planer, Enerpeak Elektroplaner, Bakus Bauphysik & Akustik, Emch+Berger Brandschutz, Nachhaltigkeit Dieter Bauer, GKP Fassadentechnik, Visualisierung Julian Nieciecki





