045
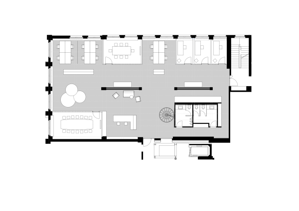
Umbau Büro Steinfelsareal, Zürich, 2022 — 2023
Direktauftrag, Vorprojekt bis Ausführungsplanung
KOLLEKTIV JUMA, Götz Baumanagement, Fotos Federico Farinatti





045
Umbau Büro Steinfelsareal, Zürich, 2022 — 2023
Direktauftrag, Vorprojekt bis Ausführungsplanung
KOLLEKTIV JUMA, Götz Baumanagement, Fotos Federico Farinatti