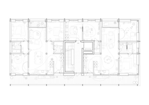
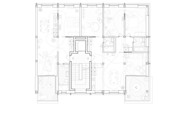
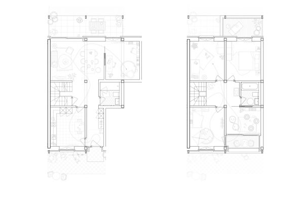
031
Wohnüberbauung Göbli, Baar, 2021
Zuger Pensionskasse
Selektiver Projektwettbewerb
KOLLEKTIV JUMA mit studio w, Laboratorium KLA, bhp Baumanagement, Gruner Berchtold Eicher Bauingenieure, Otto Bachmann HLKS-Planer, Hefte.Hess.Martignoni Elektroplaner & Brandschutz, Bakus Bauphysik & Akustik, Visualisierungen Pascal Steinmann












